House in Jelgavas district for sale 131.000€
EUR 131,000
- 2 nm
Ingatlan
Eladó
Ország
Latvia
Állam/Régió/Tartomány
Jelgavas novads
Cím
Kodoliņi un Mori,
Irányítószám
3249
Feladta
2026. 01. 20.
Leírás
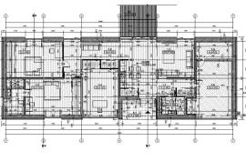
For sale is a property consisting of two plots of land “Kodoliņi” and “Mori,” as well as a new building (171.2 m2 incl. garage) near the asphalted road Emburga – Garoza.
A deep well has been created for water extraction, as well as an electricity connection (25A) and an inverter with a “net” system connection.
A private house construction project has been developed and coordinated, and there is a valid building permit.
Distance to Jelgava ~ 13 km.
The plot of land includes a metal storage container for construction work, as well as a dry toilet.
If you have any questions or want to arrange a viewing, feel free to contact us!
A deep well has been created for water extraction, as well as an electricity connection (25A) and an inverter with a “net” system connection.
A private house construction project has been developed and coordinated, and there is a valid building permit.
Distance to Jelgava ~ 13 km.
The plot of land includes a metal storage container for construction work, as well as a dry toilet.
If you have any questions or want to arrange a viewing, feel free to contact us!
Kész négyzetméter
2 nm
Telekméret
171.00 nm
Total rooms
4
Emeletek száma
1
IMLIX ID
IX8.094.690
- 5 Nézetek









