2 and 3 bedroom apartments with parking New for sale in Portimão
EUR 400,000
- 32145 mq
Proprietà per
Saldi
Nazione
Portugal
Stato / Regione / Provincia
Faro
Città
Portimão
Indirizzo
Portimão
Pubblicato
14/11/2025
Descrizione
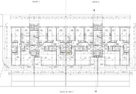
Located in the vibrant city of Portimão, these modern apartments under construction with the typology T2 and T3, are a true treasure waiting to be discovered. With two spacious bedrooms and two stylish bathrooms, this property is perfect for those looking for comfort and style.
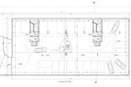
Construction starts in 2025, with a completion deadline in 2027, these apartments have unique features, such as a charming terrace, garage, heating, air conditioning, built-in wardrobes, solar system and basement. In addition, the building has an elevator, double glazing, electric shutters and a central sound system.
Located within walking distance of the beach, this property offers the best of both worlds: the tranquility of the beach and the convenience of urban living. With several restaurants and schools nearby, Portimão is the ideal place for those looking for a dynamic life full of amenities.
Don't miss the opportunity to make this apartment your new home, where you can enjoy barbecues on the balcony, security and elegance in a cozy atmosphere. Come and discover all that Portimão has to offer and make this apartment your new dream residence.
Talk to me.
Portimão is one of the most popular tourist destinations in the Algarve, southern Portugal. Here's a comprehensive overview of Portimão, covering several aspects:
Portimão is located in the Algarve region, on the southern coast of Portugal It is the second largest municipality in the Algarve in terms of area and population.
It is bordered to the north by the municipality of Monchique, to the east by Silves and to the west by Lagos.
The geography is marked by golden sand beaches, rugged cliffs and an inland landscape characterized by hills and valleys.
Portimão boasts some of the most stunning beaches in the Algarve, including the famous Praia da Rocha, known for its extensive stretch of sand and impressive rock formations.
In addition to Praia da Rocha, there are other popular beaches, such as Praia do Vau, Praia dos Três Irmãos and Praia do Alvor.
The cliffs and rock formations along the coast offer hiking opportunities and stunning panoramic views of the Atlantic Ocean.
Tourism is an essential part of Portimão's economy, attracting visitors from all over the world all year round.
Top attractions include the Santa Catarina Fortress, offering panoramic views of the coast and the Arade River, and the Portimão Museum, which showcases the history of the canning industry in the region.
Portimão Marina is another major attraction, offering yachtsmen's facilities and a variety of beachfront shops, restaurants, and bars. - REF: RICH069 VL
Construction starts in 2025, with a completion deadline in 2027, these apartments have unique features, such as a charming terrace, garage, heating, air conditioning, built-in wardrobes, solar system and basement. In addition, the building has an elevator, double glazing, electric shutters and a central sound system.
Located within walking distance of the beach, this property offers the best of both worlds: the tranquility of the beach and the convenience of urban living. With several restaurants and schools nearby, Portimão is the ideal place for those looking for a dynamic life full of amenities.
Don't miss the opportunity to make this apartment your new home, where you can enjoy barbecues on the balcony, security and elegance in a cozy atmosphere. Come and discover all that Portimão has to offer and make this apartment your new dream residence.
Talk to me.
Portimão is one of the most popular tourist destinations in the Algarve, southern Portugal. Here's a comprehensive overview of Portimão, covering several aspects:
Portimão is located in the Algarve region, on the southern coast of Portugal It is the second largest municipality in the Algarve in terms of area and population.
It is bordered to the north by the municipality of Monchique, to the east by Silves and to the west by Lagos.
The geography is marked by golden sand beaches, rugged cliffs and an inland landscape characterized by hills and valleys.
Portimão boasts some of the most stunning beaches in the Algarve, including the famous Praia da Rocha, known for its extensive stretch of sand and impressive rock formations.
In addition to Praia da Rocha, there are other popular beaches, such as Praia do Vau, Praia dos Três Irmãos and Praia do Alvor.
The cliffs and rock formations along the coast offer hiking opportunities and stunning panoramic views of the Atlantic Ocean.
Tourism is an essential part of Portimão's economy, attracting visitors from all over the world all year round.
Top attractions include the Santa Catarina Fortress, offering panoramic views of the coast and the Arade River, and the Portimão Museum, which showcases the history of the canning industry in the region.
Portimão Marina is another major attraction, offering yachtsmen's facilities and a variety of beachfront shops, restaurants, and bars. - REF: RICH069 VL
Costruito
2027
Camere da letto
3
Bagni
2
Finito piedi quadrati
145 mq
IMLIX ID
RICH069 VL
- 45 Visualizzazioni

























