Praia da Luz - Exclusive Off-Plan modern 4 Bedroom Villa with Panoramic Sea Views - Reserva da Luz
EUR 3,650,000
- 44295,65 mq
Proprietà per
Saldi
Nazione
Portugal
Stato / Regione / Provincia
Faro
Indirizzo
Luz
Pubblicato
06/02/2026
Descrizione
A rare opportunity to acquire a contemporary villa currently under construction in Reserva da Luz, one of the Western Algarves most desirable residential addresses. Set in an elevated position, the property boasts uninterrupted sea views from every level, including spectacular ocean views directly from the infinity pool.
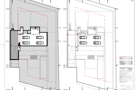
Plot with 1,500 m² and construction area of 295,65 m² on the ground floor and first floor + 192,55 m2 of basement. Buyers who commit at an early stage can shape the layout to suit their lifestyle and personal vision, finishes, and selected features, ensuring a truly personalised luxury home. Designed by the architect Vitor Vilhena, the project combines modern architecture with functionality, comfort, and long-term value, including 4 en-suite bedrooms, 4 bathrooms and 1 guest WC.
The architecture emphasises openness and light, with living areas that open onto expansive terraces and a striking infinity pool, offering a refined setting for both private enjoyment and elegant entertaining. High-quality materials, contemporary finishes, and energy-efficient systems will be used throughout.
Ideally located just minutes from golden beaches, renowned golf courses, and the charming village of Praia da Luz, this property offers the perfect balance between privacy, lifestyle, and accessibility. Whether for permanent residence, luxury holiday home, or high-yield investment, this villa represents an outstanding opportunity to secure prime Algarve real estate.
Energy Rating A
Fine & Country Algarve is part of the international network of F&C offices in over 300 locations worldwide, We have four offices in the Algarve covering the whole region from east to west. We also work closely with the Fine & Country offices elsewhere in Portugal and internationally. In the Algarve, Fine & Country has a vast portfolio of properties for sale and a dedicated team of professionals with in-depth market knowledge.
* All feature(s) equipment(s) mentioned in this description are subject to final verification and agreement between vendors and buyers. - REF: FC1090VCL
Plot with 1,500 m² and construction area of 295,65 m² on the ground floor and first floor + 192,55 m2 of basement. Buyers who commit at an early stage can shape the layout to suit their lifestyle and personal vision, finishes, and selected features, ensuring a truly personalised luxury home. Designed by the architect Vitor Vilhena, the project combines modern architecture with functionality, comfort, and long-term value, including 4 en-suite bedrooms, 4 bathrooms and 1 guest WC.
The architecture emphasises openness and light, with living areas that open onto expansive terraces and a striking infinity pool, offering a refined setting for both private enjoyment and elegant entertaining. High-quality materials, contemporary finishes, and energy-efficient systems will be used throughout.
Ideally located just minutes from golden beaches, renowned golf courses, and the charming village of Praia da Luz, this property offers the perfect balance between privacy, lifestyle, and accessibility. Whether for permanent residence, luxury holiday home, or high-yield investment, this villa represents an outstanding opportunity to secure prime Algarve real estate.
Energy Rating A
Fine & Country Algarve is part of the international network of F&C offices in over 300 locations worldwide, We have four offices in the Algarve covering the whole region from east to west. We also work closely with the Fine & Country offices elsewhere in Portugal and internationally. In the Algarve, Fine & Country has a vast portfolio of properties for sale and a dedicated team of professionals with in-depth market knowledge.
* All feature(s) equipment(s) mentioned in this description are subject to final verification and agreement between vendors and buyers. - REF: FC1090VCL
Condizione
Excellent
Costruito
2026
Camere da letto
4
Bagni
4
Finito piedi quadrati
295,65 mq
Dimensione del lotto
1500 mq
IMLIX ID
FC1090VCL
- 16 Visualizzazioni















