Plot with project approved in Vale del Rei
EUR 995,000
- 299 mq
Proprietà per
Saldi
Nazione
Portugal
Stato / Regione / Provincia
Faro
Città
Lagoa
Indirizzo
Lagoa e Carvoeiro
Pubblicato
26/02/2026
Descrizione
An exceptional opportunity to acquire a unique property in Vale del Rei, just minutes from the renowned Praia da Marinha, widely regarded as one of the most beautiful beaches in Europe. Set within the peaceful Algarve countryside yet close to the coastlines cliffs and turquoise waters, this offering combines privacy and prime location.
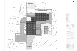
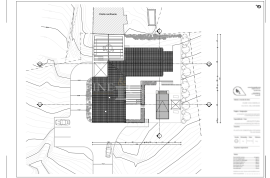
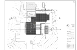
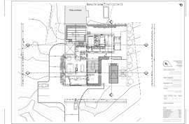
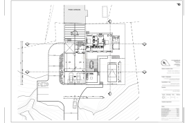
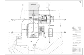
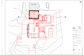
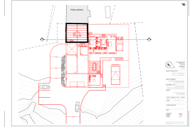
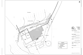
The sale includes three distinct plots: a rustic plot with 19,160 m², a mixed plot with 16,350 m² where an approved architectural project is in place, and an additional urban plot measuring 433 m². Together, these parcels create a substantial landholding with exceptional potential, ensuring privacy and long-term value in one of the Algarves most desirable areas.
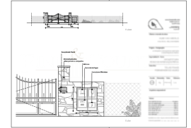
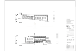
The mixed plot benefits from full project approval for the construction of a villa designed to blend harmoniously with its natural surroundings. The villa features 299 m² of build area complemented by a spacious 171 m² basement, offering versatile. The project also includes a private swimming pool and generous terraces, designed to maximize outdoor living and the Algarves year-round sunshine.
Located just a short drive from the coast and close to the charming towns of Carvoeiro and Lagoa, this property offers tranquility without isolation, with Faro International Airport approximately 45 minutes away. With its extensive land area, approved villa project, and proximity to Praia da Marinha, this is a rare opportunity to create a bespoke residence or secure a valuable investment in the heart of the Algarve.
Energy Rating Exempt
Fine & Country Algarve is part of the international network of F&C offices in over 300 locations worldwide, we have four offices in the Algarve covering the whole region from east to west. We also work closely with the Fine & Country offices elsewhere in Portugal and internationally. In the Algarve, Fine & Country has a vast portfolio of properties for sale and a dedicated team of professionals with in-depth market knowledge.
* All feature(s) equipment(s) mentioned in this description are subject to final verification and agreement between vendors and buyers.
- REF: FC1092VC
The sale includes three distinct plots: a rustic plot with 19,160 m², a mixed plot with 16,350 m² where an approved architectural project is in place, and an additional urban plot measuring 433 m². Together, these parcels create a substantial landholding with exceptional potential, ensuring privacy and long-term value in one of the Algarves most desirable areas.
The mixed plot benefits from full project approval for the construction of a villa designed to blend harmoniously with its natural surroundings. The villa features 299 m² of build area complemented by a spacious 171 m² basement, offering versatile. The project also includes a private swimming pool and generous terraces, designed to maximize outdoor living and the Algarves year-round sunshine.
Located just a short drive from the coast and close to the charming towns of Carvoeiro and Lagoa, this property offers tranquility without isolation, with Faro International Airport approximately 45 minutes away. With its extensive land area, approved villa project, and proximity to Praia da Marinha, this is a rare opportunity to create a bespoke residence or secure a valuable investment in the heart of the Algarve.
Energy Rating Exempt
Fine & Country Algarve is part of the international network of F&C offices in over 300 locations worldwide, we have four offices in the Algarve covering the whole region from east to west. We also work closely with the Fine & Country offices elsewhere in Portugal and internationally. In the Algarve, Fine & Country has a vast portfolio of properties for sale and a dedicated team of professionals with in-depth market knowledge.
* All feature(s) equipment(s) mentioned in this description are subject to final verification and agreement between vendors and buyers.
- REF: FC1092VC
Finito piedi quadrati
299 mq
Dimensione del lotto
35493 mq
Virtual tour URL
IMLIX ID
FC1092VC
- 1 Visualizzazioni































