Rustic land with 142,593 m2 in Salir – Loulé.
EUR 175,000
Property for
Sale
Country
Portugal
State/Region/Province
Faro
City
Salir
Address
Salir
Posted
Dec 12, 2025
Description
Rustic land with 142,593 m2 in Salir Loulé.
This land is intended for cultivation and pasture and is suitable for equestrian facilities, agricultural infrastructure, fruit growing, forestry, and timber exploitation.
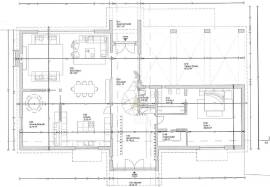
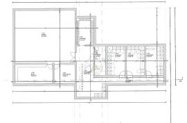
There is an architectural project for a 500 m2 house, for someone who registers with the main activity as "farmer" and who intends it to be their main residence with their principal tax domicile.
Areas included in the project:
- Gross construction area: 497 m2 (Ground floor: 252 m2, 1st floor: 245 m2)
- Basement area: 247 m2
- Building footprint: 243 m2
- Swimming pool: 76 m2
This property has several access points. The main access is via paved road, and the other accesses are by dirt road.
The land has a flat part and a sloping part.
It is located a few kilometers and a few minutes' drive from:
Salir Center: 2.3 km (3 minutes)
Faro Airport: 36 km (34 minutes)
Loulé: 16 km (19 minutes)
Vilamoura: 30 km (35 minutes)
Albufeira: 32 km (38 minutes)
Excellent opportunity to start a rural and recreational activity. - REF: NGKC039 LO
This land is intended for cultivation and pasture and is suitable for equestrian facilities, agricultural infrastructure, fruit growing, forestry, and timber exploitation.
There is an architectural project for a 500 m2 house, for someone who registers with the main activity as "farmer" and who intends it to be their main residence with their principal tax domicile.
Areas included in the project:
- Gross construction area: 497 m2 (Ground floor: 252 m2, 1st floor: 245 m2)
- Basement area: 247 m2
- Building footprint: 243 m2
- Swimming pool: 76 m2
This property has several access points. The main access is via paved road, and the other accesses are by dirt road.
The land has a flat part and a sloping part.
It is located a few kilometers and a few minutes' drive from:
Salir Center: 2.3 km (3 minutes)
Faro Airport: 36 km (34 minutes)
Loulé: 16 km (19 minutes)
Vilamoura: 30 km (35 minutes)
Albufeira: 32 km (38 minutes)
Excellent opportunity to start a rural and recreational activity. - REF: NGKC039 LO
Lot Size
142593 sq m
IMLIX ID
NGKC039 LO
- 22 Views



















