New build apartments in S. Martinho do Bispo
EUR 450,000
- 32165 m2
Için mülk
Satılık
Ülke
Portugal
Eyalet/Bölge/ Şehir
Coimbra
Şehir/İlçe
Coimbra
Yayınlandı
04.02.2026
Açıklama
A new concept of living, where comfort meets tranquility.
This exclusive residential development, currently under construction, consists of only six fractions, ensuring privacy, quality and a family atmosphere. Every detail has been carefully thought out to provide well-being, functionality and a modern experience.
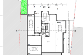
On Floor 0, there are a T1, a T2 and a T3, all with generous areas, excellent sun exposure and large balconies.
On the 1st floor, a T1, a T2 and a T3 are available, all with an attic, versatile spaces with good ceiling height, floating floors and pre-installation for a bathroom, ideal for creating additional areas for leisure, work or rest.
The building's elevated location allows you to enjoy stunning views of the city, complemented by access to a communal terrace area, perfect for unique outdoor moments.
Inserted in a quiet residential area, with good access and a large safe patio, this development is ideal for families, offering an outdoor space where children can play in tranquility. The garages are spacious and functional, reinforcing the comfort of everyday life.
With quality finishes and a modern construction, this project represents an excellent opportunity to live or invest.
Completion of the work scheduled for 2027.
The information on this website is merely indicative and does not have a contractual nature. It may, for technical, commercial or legal reasons, be subject to change without prior notice.
ComprarCasa is a Real Estate Network made up exclusively of members of APEMIP (Association of Real Estate Professionals and Companies of Portugal), a guarantee of professionalism and protection of the rights of consumers and users.
APEMIP occupies today a prominent position in the national real estate market, both for its continuous commitment to the affirmation of the role of the real estate agent professional in our society, and for the conquest of a greater share in the real estate transaction market, in line with the motto "Strengthen Mediation, Boost the Economy and Serve Consumers".
For its part, UCI (União de Créditos Imobiliários) is a Financial Institution specialized in granting housing loans to individuals through real estate professionals. UCI is the result of a joint venture between two of the largest financial groups in Europe: the Santander Group, the BNP Paribas Group. From this union arises the commitment to help develop the real estate sector, putting at your fingertips the best tools that make it possible to enhance the real estate business.
In this sense, it is perfectly logical that these two reference entities in the real estate sector (APEMIP and UCI) have, in June 2004, signed a collaboration agreement giving rise to ComprarCasa Apemip's Real Estate Network.
ComprarCasa began its commercial activity in August 2004 based on the mission of "Being the Largest and Best National Real Estate Network offering multiple services to real estate agents, based on the concept of common brand", enabling and enhancing synergies that become added values for the market, namely for you who intend to sell, buy, rent or transfer a certain property.
Quality Policy ComprarCasa Coimbra
ComprarCasa Coimbra is committed to providing an excellent service to the various stakeholders in the real estate sector, providing the best tools that make it possible to enhance the real estate business. This business concept, although original, has traditional values in its genesis:
Professionalism; Commitment; Capacity and Competence.
The policy adopted by ComprarCasa Coimbra consists of working, under an economical, effective and dynamic Quality Management System, documented and regularly verified to continuously improve its adequacy and effectiveness, systematically renewing itself with a view to the continuous improvement of the company's performance, thus ensuring the adjustment to the needs of internal and external customers, enabling it to achieve the objective of offering the customer a service of quality and value added.
The quality policy of the ComprarCasa Network provides a reference framework by establishing and periodically reviewing the objectives of the Network and by ensuring compliance with the requirements of the standard, Legislation, Regulation, Quality System implemented and other requirements applicable to the activity.
ComprarCasa Coimbra. The best way to find the ideal home.
- REF: 385/A/01004
This exclusive residential development, currently under construction, consists of only six fractions, ensuring privacy, quality and a family atmosphere. Every detail has been carefully thought out to provide well-being, functionality and a modern experience.
On Floor 0, there are a T1, a T2 and a T3, all with generous areas, excellent sun exposure and large balconies.
On the 1st floor, a T1, a T2 and a T3 are available, all with an attic, versatile spaces with good ceiling height, floating floors and pre-installation for a bathroom, ideal for creating additional areas for leisure, work or rest.
The building's elevated location allows you to enjoy stunning views of the city, complemented by access to a communal terrace area, perfect for unique outdoor moments.
Inserted in a quiet residential area, with good access and a large safe patio, this development is ideal for families, offering an outdoor space where children can play in tranquility. The garages are spacious and functional, reinforcing the comfort of everyday life.
With quality finishes and a modern construction, this project represents an excellent opportunity to live or invest.
Completion of the work scheduled for 2027.
The information on this website is merely indicative and does not have a contractual nature. It may, for technical, commercial or legal reasons, be subject to change without prior notice.
ComprarCasa is a Real Estate Network made up exclusively of members of APEMIP (Association of Real Estate Professionals and Companies of Portugal), a guarantee of professionalism and protection of the rights of consumers and users.
APEMIP occupies today a prominent position in the national real estate market, both for its continuous commitment to the affirmation of the role of the real estate agent professional in our society, and for the conquest of a greater share in the real estate transaction market, in line with the motto "Strengthen Mediation, Boost the Economy and Serve Consumers".
For its part, UCI (União de Créditos Imobiliários) is a Financial Institution specialized in granting housing loans to individuals through real estate professionals. UCI is the result of a joint venture between two of the largest financial groups in Europe: the Santander Group, the BNP Paribas Group. From this union arises the commitment to help develop the real estate sector, putting at your fingertips the best tools that make it possible to enhance the real estate business.
In this sense, it is perfectly logical that these two reference entities in the real estate sector (APEMIP and UCI) have, in June 2004, signed a collaboration agreement giving rise to ComprarCasa Apemip's Real Estate Network.
ComprarCasa began its commercial activity in August 2004 based on the mission of "Being the Largest and Best National Real Estate Network offering multiple services to real estate agents, based on the concept of common brand", enabling and enhancing synergies that become added values for the market, namely for you who intend to sell, buy, rent or transfer a certain property.
Quality Policy ComprarCasa Coimbra
ComprarCasa Coimbra is committed to providing an excellent service to the various stakeholders in the real estate sector, providing the best tools that make it possible to enhance the real estate business. This business concept, although original, has traditional values in its genesis:
Professionalism; Commitment; Capacity and Competence.
The policy adopted by ComprarCasa Coimbra consists of working, under an economical, effective and dynamic Quality Management System, documented and regularly verified to continuously improve its adequacy and effectiveness, systematically renewing itself with a view to the continuous improvement of the company's performance, thus ensuring the adjustment to the needs of internal and external customers, enabling it to achieve the objective of offering the customer a service of quality and value added.
The quality policy of the ComprarCasa Network provides a reference framework by establishing and periodically reviewing the objectives of the Network and by ensuring compliance with the requirements of the standard, Legislation, Regulation, Quality System implemented and other requirements applicable to the activity.
ComprarCasa Coimbra. The best way to find the ideal home.
- REF: 385/A/01004
Yıl
2026
Yatak odası
3
Banyo
2
Bitmiş metrekare
165 m2
IMLIX ID
385/A/01004
- 42 Görüntüler















