Vale Covo - Land with approved project near Vilamoura
EUR 350,000
Için mülk
Satılık
Ülke
Portugal
Eyalet/Bölge/ Şehir
Faro
Şehir/İlçe
Loule
Adres
Boliqueime
Yayınlandı
14.06.2022
Açıklama
Plot of land of 1421 m2 located in Vale Covo in a very quiet area, being 10 minutes from the center of Vilamoura.
This lot has approved architectural project with the following areas:
> Implantation area: 168.90m2
> Gross construction area: 270m2
The project in the images corresponds to a modern villa, with 2 floors, a basement and a large area of swimming pool and garden.
Important to note that the accesses are made by tarmac road, road M1293, and that it is facing south having a very unobstructed view.
If you are interested, it can also be sold with the house already built by negotiation with the owner.
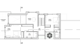
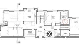
Features design approved for home with basement, G f, 1st floor, pool and garden area:
Gross basement construction area: 156.60m2
> Garage: 122.10m2
> Storage: 3.70m2
Gross construction area of the Ground: 168.90m2
> Common room: 40.70m2
> Kitchen: 14.30m2
> Laundry Expense: 5.70 m2
> wc: 2.50m2
> Suite 1: 15.40m2 + 7.90m2
> Suite 2: 17.90m2 + 4.60m2
Gross construction area of the 1st floor: 101.10m2
> Suite 3: 19.70m2 + 4.70m2
> Office: 11.40m2
> Master suite: 27.40m2 + 7.60m2
> Covered terrace: 21.40m2
- REF: 030300ZP
This lot has approved architectural project with the following areas:
> Implantation area: 168.90m2
> Gross construction area: 270m2
The project in the images corresponds to a modern villa, with 2 floors, a basement and a large area of swimming pool and garden.
Important to note that the accesses are made by tarmac road, road M1293, and that it is facing south having a very unobstructed view.
If you are interested, it can also be sold with the house already built by negotiation with the owner.
Features design approved for home with basement, G f, 1st floor, pool and garden area:
Gross basement construction area: 156.60m2
> Garage: 122.10m2
> Storage: 3.70m2
Gross construction area of the Ground: 168.90m2
> Common room: 40.70m2
> Kitchen: 14.30m2
> Laundry Expense: 5.70 m2
> wc: 2.50m2
> Suite 1: 15.40m2 + 7.90m2
> Suite 2: 17.90m2 + 4.60m2
Gross construction area of the 1st floor: 101.10m2
> Suite 3: 19.70m2 + 4.70m2
> Office: 11.40m2
> Master suite: 27.40m2 + 7.60m2
> Covered terrace: 21.40m2
- REF: 030300ZP
Arazi Büyüklüğü
1421 m2
IMLIX ID
030300ZP
- 232 Görüntüler


















