Commercial property in Riga city for rent 500€
EUR 500
Için mülk
Kiralık
Ülke
Latvia
Eyalet/Bölge/ Şehir
Riga
Adres
Pērnavas iela, 54 14
Posta kodu
3239
Yayınlandı
10.02.2026
Açıklama
Multifunctional premises in the center of Riga – Pērnavas Street 45
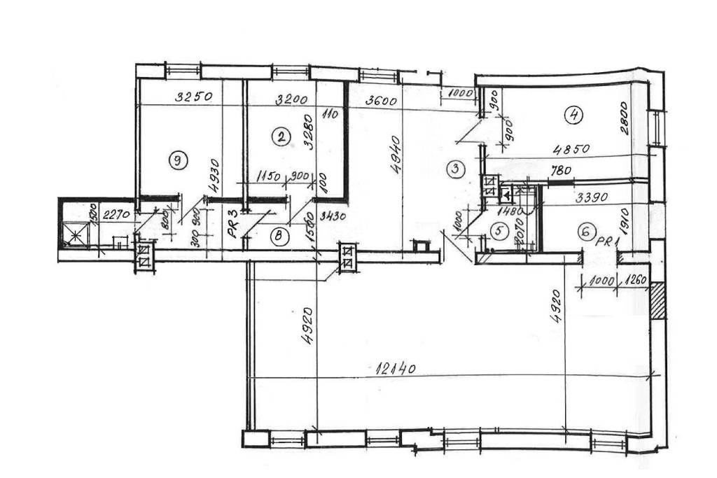
We offer spacious premises for rent with a total area of 129.9 m² in a strategically advantageous location. The premises are located on the ground floor/semi-basement, providing privacy and a quiet working environment in the city center.
Key Information:
Area: 129.9 m².
Location: Pērnavas Street 45, Riga.
Access: Entrance from the courtyard side, ensuring discretion and protection from street noise.
Parking: Parking spaces in a closed courtyard are available for an additional fee – a significant advantage in this part of the city.
Heating: Local gas heating system.
Ideal for:
The layout and location are perfectly suited for:
An office or creative studio/workshop where peace and quiet are essential.
An online store warehouse or archive with convenient delivery access from the courtyard.
A service point that does not require a street-facing shop window.
Sports or yoga classes.
Financial Benefits:
This offer is particularly attractive to companies, organizations, or individuals who are not VAT payers:
Rent is not subject to VAT. This means your direct costs are 21% lower compared to similar properties rented by VAT payers, allowing for more efficient budget planning.
These premises combine the advantages of a central location with practical solutions at a competitive price.
We offer spacious premises for rent with a total area of 129.9 m² in a strategically advantageous location. The premises are located on the ground floor/semi-basement, providing privacy and a quiet working environment in the city center.
Key Information:
Area: 129.9 m².
Location: Pērnavas Street 45, Riga.
Access: Entrance from the courtyard side, ensuring discretion and protection from street noise.
Parking: Parking spaces in a closed courtyard are available for an additional fee – a significant advantage in this part of the city.
Heating: Local gas heating system.
Ideal for:
The layout and location are perfectly suited for:
An office or creative studio/workshop where peace and quiet are essential.
An online store warehouse or archive with convenient delivery access from the courtyard.
A service point that does not require a street-facing shop window.
Sports or yoga classes.
Financial Benefits:
This offer is particularly attractive to companies, organizations, or individuals who are not VAT payers:
Rent is not subject to VAT. This means your direct costs are 21% lower compared to similar properties rented by VAT payers, allowing for more efficient budget planning.
These premises combine the advantages of a central location with practical solutions at a competitive price.
Arazi Büyüklüğü
129.90 m2
Floor Number
1
Total rooms
7
Kat Sayısı
2
IMLIX ID
IX8.167.305
- 44 Görüntüler










