Commercial Building: Restaurante + Shop + 1 Apartment + Storage - Loulé / EN125
EUR 1,260,000
- 36260 m2
Propiedad para
Venta
País
Portugal
Estado/Región/Provincia
Faro
Ciudad
Loule
Dirección
Loulé (São Sebastião)
Publicado
17/05/2023
Descripción
An ideal property to have a business on the ground floor and live on the first floor, or to live and create an income from the commercial spaces or even to rent the whole building, as the first floor can be subdivided into apartments or used as offices.
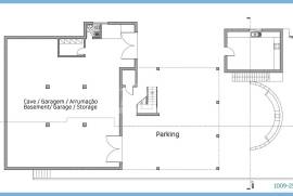
The ground floor is divided into two commercial spaces with excellent access and visibility from the main road, has a large frontal parking area. At the moment, one of the spaces is rented as a coffee shop, in the back and for private use there is a garage area for 4 cars, a warehouse and a covered area used for parking for 3 more cars.
The first floor of the house is in excellent condition, consists of three bedrooms, plus an office, two bathrooms, one of them renovated, kitchen with laundry, living dining room with a very spacious terrace with open views to the countryside, from where it is possible to access the private leisure area with garden, vegetable garden, above ground pool and an outdoor dining area with a very nice barbecue area and an outdoor enclosed kitchen fully equipped.
- Restaurant Coffee Shop: 2 rooms, Kitchen, 2 bathrooms, Air Conditioning = 121,79 m2
- Shop: 1 room + bathroom w AC= 87,36 m2
- Parking for commercial spaces
- REF: 1009-2171 A
The ground floor is divided into two commercial spaces with excellent access and visibility from the main road, has a large frontal parking area. At the moment, one of the spaces is rented as a coffee shop, in the back and for private use there is a garage area for 4 cars, a warehouse and a covered area used for parking for 3 more cars.
The first floor of the house is in excellent condition, consists of three bedrooms, plus an office, two bathrooms, one of them renovated, kitchen with laundry, living dining room with a very spacious terrace with open views to the countryside, from where it is possible to access the private leisure area with garden, vegetable garden, above ground pool and an outdoor dining area with a very nice barbecue area and an outdoor enclosed kitchen fully equipped.
- Restaurant Coffee Shop: 2 rooms, Kitchen, 2 bathrooms, Air Conditioning = 121,79 m2
- Shop: 1 room + bathroom w AC= 87,36 m2
- Parking for commercial spaces
- REF: 1009-2171 A
Nuevo
No
Fabricado
1987
Dormitorios
3
Baños
6
Pies cuadrados terminados
260 m2
Tamaño del lote
2200 m2
IMLIX ID
1009-2171 A
- 215 Visualizaciones




























