Plot & Approved Project for Construction of a 4 Bed. Villa
EUR 170,000
- 43215,5 m2
Propiedad para
Venta
País
Portugal
Estado/Región/Provincia
Faro
Ciudad
Sao Bras de Alportel
Dirección
São Brás de Alportel
Publicado
09/06/2023
Descripción
The land has open views to the countryside and an easy access from the city's ring road and is part of a small condominium where there are only 11 units that share a common area which comprises a landscaped garden and a swimming pool, however this plot also has a private garden.
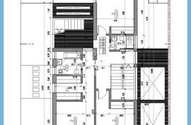
The approved project is for a modern house with two floors plus basement. The ground floor is divided into a spacious open plan living room and kitchen, one bedroom and a bathroom, the first floor has 3 bedrooms, one is en-suite, two bathrooms, terraces, one of which gives access to a fantastic rooftop terrace. The large basement benefits from natural light and a garden in some areas, where you can create a games room, cinemahome, etc. it has several rooms for storage and laundry and it will still be possible to park 3 cars easily.
Pleasant private garden and terraces, extend to the front of the house as well as to the back and complement this fantastic property not to be missed, as it will be possible to customize in terms of finishes and start building and avoid the project approval timings.
Basement= 242.8 m2
Rooftop Terrace = 102,25 m2
- REF: 1009-2310
The approved project is for a modern house with two floors plus basement. The ground floor is divided into a spacious open plan living room and kitchen, one bedroom and a bathroom, the first floor has 3 bedrooms, one is en-suite, two bathrooms, terraces, one of which gives access to a fantastic rooftop terrace. The large basement benefits from natural light and a garden in some areas, where you can create a games room, cinemahome, etc. it has several rooms for storage and laundry and it will still be possible to park 3 cars easily.
Pleasant private garden and terraces, extend to the front of the house as well as to the back and complement this fantastic property not to be missed, as it will be possible to customize in terms of finishes and start building and avoid the project approval timings.
Basement= 242.8 m2
Rooftop Terrace = 102,25 m2
- REF: 1009-2310
Dormitorios
4
Baños
3
Pies cuadrados terminados
215,5 m2
Tamaño del lote
504,65 m2
IMLIX ID
1009-2310
- 364 Visualizaciones














