listing
EUR 3,049,000
- 33291 m²
Imóveis para
Venda
Country
Espanha
Address
Baladrar
Adicionado
31/03/2026
Informação adicional
This modern villa in Benissa is distributed over three levels and enjoys beautiful sea views as well as views towards the Peñón de Ifach. Designed with natural materials and light colours, the property offers a stylish yet warm Mediterranean atmosphere with large windows that fill the interior with natural light.
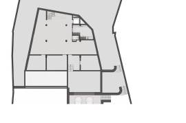
The villa sits on a 770 m² plot and offers approximately 291 m² of living space with around 200 m² of terraces and a private 4 x 8 m swimming pool. The ground floor features a spacious open-plan living, dining and kitchen area with direct access to the pool terrace.
The first floor offers two bedrooms with en-suite bathrooms, one with additional bunk beds. The top floor is dedicated to the master suite with walk-in wardrobe, en-suite bathroom and a private roof terrace with stunning sea and Peñón de Ifach views.
The basement includes a wine cellar, laundry room and several rooms that can be converted into a gym, cinema or games room. The property also offers a garage for two cars, additional driveway parking, lift access to all floors and air conditioning throughout.
For more information or to arrange a viewing, please do not hesitate to contact us.
The villa sits on a 770 m² plot and offers approximately 291 m² of living space with around 200 m² of terraces and a private 4 x 8 m swimming pool. The ground floor features a spacious open-plan living, dining and kitchen area with direct access to the pool terrace.
The first floor offers two bedrooms with en-suite bathrooms, one with additional bunk beds. The top floor is dedicated to the master suite with walk-in wardrobe, en-suite bathroom and a private roof terrace with stunning sea and Peñón de Ifach views.
The basement includes a wine cellar, laundry room and several rooms that can be converted into a gym, cinema or games room. The property also offers a garage for two cars, additional driveway parking, lift access to all floors and air conditioning throughout.
For more information or to arrange a viewing, please do not hesitate to contact us.
Novo
Sim
Quartos de dormir
3
Banheiro
3
Pés quadrados acabados
291 m²
Tamanho do lote
770 m²
Outdoor Amenities
Pool
IMLIX ID
BC02-32542
- 21 Visualizações






















