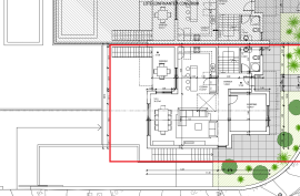
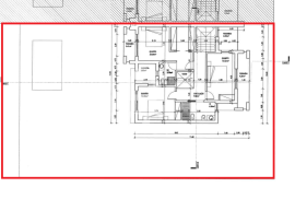
Semi-detached Seixal Vale de Milhaços
EUR 635,000
- 44
Imóveis para
Venda
Country
Portugal
State/Region/Province
Distrito de Setúbal
Cidade
Seixal
Address
Corroios
Adicionado
12/04/2023
Informação adicional
- REF: 363/M/00809
Construído
2023
Quartos de dormir
4
Banheiro
4
Tamanho do lote
436,8 m²
IMLIX ID
363/M/00809
- 398 Visualizações









