Apartment 177 sq.m for sale
EUR 270,000
- 32177 m²
Imóveis para
Venda
Country
Grécia
Adicionado
12/12/2025
Informação adicional
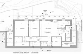
Real estate consultant iason Filippidis, member of the Sianos-Papageorgiou group and the RE/MAX Domi office. Property code 25326-10068 For sale exclusively by our team, three-story building with a total area of 468 sq.m. on a plot of 1,960 sq.m., which is located after Ano Volos and just before the village of Stagiaton Pelion, among tall trees and a refreshing stream. The building was constructed in 1983 and the renovation to its current form began in 2016. The building consists of three floor apartments: **1st Floor (Upper Apartment - 186 sq.m.):** - 1 living room - 2 storage rooms - 3 bedrooms - 3 bathrooms - 1 WC - 1 kitchen **2nd Floor (Medium Apartment - 175sq.m.):** - 2 living rooms - 2 kitchens - 2 storerooms - 2 bathrooms - 1 WC - 3 bedrooms - Large semi-outdoor common area for all building - Access from an external staircase **Ground floor (Downstairs Apartment - 105 sq.m.):** - 1 living room - 1 kitchen - 2 bedrooms - 2 bathrooms - 1 WC - 1 storage room - Elevator from the asphalt level and external staircase heating of the building will be carried out with heat pumps and there is pre-installation for a fireplace. Hot water is provided by 3 water heaters. The layout of the floors supports a possible separation of the upper and middle level apartments into two individual separate apartments. The property is currently 90% renovated, however will be delivered 100% complete. For more information contact me, we will be happy to show you it up close.
Construído
1983
Quartos de dormir
3
Banheiro
2
1/2 baths
1
Pés quadrados acabados
177 m²
Floor Number
23
Heating
Sim
Número de pisos
3
Furnished
Não
IMLIX ID
IX8.015.874
- 75 Visualizações































