Olhão – 2-bedroom homestead in Moncarapacho with renovation potential
EUR 460,000
- 2192 m2
Propiedad para
Venta
País
Portugal
Estado/Región/Provincia
Faro
Ciudad
Olhao
Dirección
Moncarapacho
Publicado
30/01/2026
Descripción
Located in the peaceful countryside of Moncarapacho, this charming two-bedroom homestead offers excellent renovation potential, with project plans ready to be submitted for approval. Set on nearly 5,000m² of rustic land, the property provides generous outdoor space, ideal for those seeking a rural lifestyle or equestrian use while remaining close to the coast. Just 3km from Fuseta Beach and 30 minutes from Faro Airport, it benefits from convenient access to the N125 and nearby amenities.
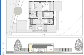
The existing house comprises an open-plan kitchen and dining area, a separate lounge with a wood-burning fireplace, two bedrooms, and a family bathroom. Fully tiled throughout, the interiors offer a solid foundation for modernisation or extension, allowing the new owner to personalise the layout and design.
Outdoors, the homestead is equipped with solar panels for both electricity generation and water heating, supported by a 5kW battery system. The grounds are fully fenced and gated, with ample parking and multiple water sources including mains supply, a borehole, and a cisternensuring energy efficiency and flexibility for year-round living.
With its tranquil setting, generous landholding, and project plans ready to be submitted, this property represents a compelling opportunity to create a bespoke countryside home or long-term investment in one of the Algarves most desirable coastal regions.
Features and fittings mentioned are subject to agreement and verification between the vendor and the buyer.
Energy rating: B-
- Located in Moncarapacho, East Algarve
- Two-bedroom, one-bathroom quinta with renovation plans
- Registered living area of 92m² set on nearly 5,000m² of rustic land
- 3km from Fuseta Beach and 30 minutes from Faro Airport
- Open-plan kitchen and dining area, separate lounge with fireplace
- Solar panels for electricity and water heating with 5kW battery system
- Mains electricity and water, plus borehole and cistern
- Fully fenced and gated plot with ample on-site parking
- Generous and adaptable outdoor space suitable for leisure, gardening, or small-scale rural use, including horses
- Peaceful rural setting within easy reach of local amenities
- REF: FC055TVL
The existing house comprises an open-plan kitchen and dining area, a separate lounge with a wood-burning fireplace, two bedrooms, and a family bathroom. Fully tiled throughout, the interiors offer a solid foundation for modernisation or extension, allowing the new owner to personalise the layout and design.
Outdoors, the homestead is equipped with solar panels for both electricity generation and water heating, supported by a 5kW battery system. The grounds are fully fenced and gated, with ample parking and multiple water sources including mains supply, a borehole, and a cisternensuring energy efficiency and flexibility for year-round living.
With its tranquil setting, generous landholding, and project plans ready to be submitted, this property represents a compelling opportunity to create a bespoke countryside home or long-term investment in one of the Algarves most desirable coastal regions.
Features and fittings mentioned are subject to agreement and verification between the vendor and the buyer.
Energy rating: B-
- Located in Moncarapacho, East Algarve
- Two-bedroom, one-bathroom quinta with renovation plans
- Registered living area of 92m² set on nearly 5,000m² of rustic land
- 3km from Fuseta Beach and 30 minutes from Faro Airport
- Open-plan kitchen and dining area, separate lounge with fireplace
- Solar panels for electricity and water heating with 5kW battery system
- Mains electricity and water, plus borehole and cistern
- Fully fenced and gated plot with ample on-site parking
- Generous and adaptable outdoor space suitable for leisure, gardening, or small-scale rural use, including horses
- Peaceful rural setting within easy reach of local amenities
- REF: FC055TVL
Nuevo
No
Dormitorios
2
Baños
1
Pies cuadrados terminados
92 m2
Tamaño del lote
4920 m2
Virtual tour URL
IMLIX ID
FC055TVL
- 38 Visualizaciones





























